kanalizacja , pompa, garaż, las

















dom bliźniak • na sprzedaż • rynek pierwotny • Wrocław • Fabryczna
860 080 zł
• 104 m²
8 270 zł za m2
8 270 zł za m2
4 pokoje • 2 łazienki • budynek 2 piętrowy • Rok budowy: 2026
Kontakt
BEZ PROWIZJI I PCC!
Nowoczesny dom 4 pokoje | garaż / możliwość dużej kuchni | prywatny ogród | Ratyń - Wrocław
Kameralna inwestycja czterech nowoczesnych domów w zielonej części Wrocławia - Ratyń. Funkcjonalny układ 4 pokoi z możliwością adaptacji garażu na pełnowymiarową kuchnię lub dodatkowy pokój. Idealna alternatywa dla mieszkania w bloku - prywatny ogród, cisza i szybki dojazd do centrum.
Najważniejsze atuty:
87 m² + garaż 17 m² (możliwość przerobienia na kuchnię/gabinet)
4 pokoje: parter - salon z aneksem, piętro - 3 sypialnie + łazienka + garderoba
Prywatny ogródek
Tylko 4 domy w inwestycji - kameralna atmosfera
Pompa ciepła i ogrzewanie podłogowe
Instalacja pod fotowoltaikę
Żaluzje elektryczne w kolorze antracyt
Wysokie pomieszczenia i duże przeszklenia
Rachunek powierniczy + DFG - bezpieczeństwo transakcji
Dla kogo:
Rodzina z 1-2 dzieci szukająca domu blisko Wrocławia
Osoby pracujące hybrydowo, potrzebujące dodatkowego gabinetu
Ludzie uciekający z mieszkania w bloku i szukający prywatnej przestrzeni
Parter: salon z aneksem kuchennym i wyjściem do ogrodu, toaleta, ogrzewany garaż z instalacją wod/kan w bryle budynku.
Piętro: trzy ustawne sypialnie, duża łazienka z miejscem na wannę, prysznic, praktyczne pomieszczenie gospodarcze/garderoba.
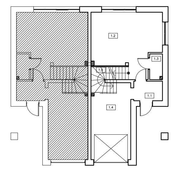
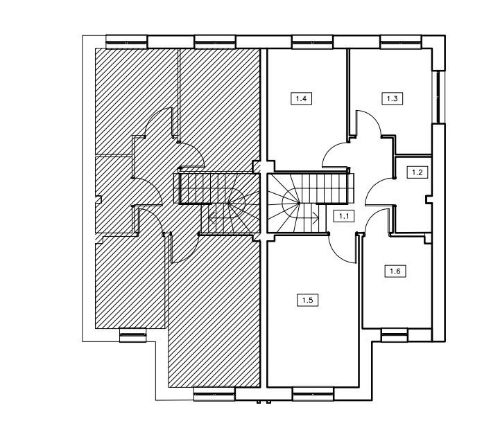
Wykaz powierzchni
Parter - 51,90 m2
1.1 Wiatrołap - 3,50 m2,
1.2 Pokój dzienny z aneksem kuchennym - 23.97m2
1.3 WC - 2m2
1.4 Garaż - 17,74m2
1.5 Komunikacja - 4.69m2
Piętro - 52,92 m2:
1.1 Korytarz - 5,91 m2
1.2 Garderoba - 3,16m2
1.3 Sypialnia - 9.08 m2
1.4 Sypialnia - 11,22
1.5 Sypialnia- 16,01m2
1.6 Łazienka - 7,52m2
Budynki sprzedawane w stanie deweloperskim.
Standard wykończenia
ul. Trzmielowicka Wrocław
Standard wykończenia
A. ŚCIANY, STROPY, SCHODY, KOMINY:
1.Roboty ziemne, ławy żelbetowe, słupy/trzpienie żelbetowe, fundamenty
2.Izolacje bitumiczne
3. Ściany nośne I kondygnacji oraz II kondygnacji z bloczków silikatowych lub pustaków ceramicznych
4. Ścianki działowe na parterze i pierwszym piętrze.
5.Nadproża żelbetowe, słupy/trzpienie żelbetowe.
6. Kominy
7. Strop nad parterem
8. Strop nad piętrem
9. Schody wewnętrzne żelbetowe, wylewane lub prefabrykowane parter
B. DACH
1. Izolacja termiczna ze styropianu
2. Hydroizolacja z membrany PVC
3. Rury spustowe
4. Wyłaz dachowy
C. ELEWACJE:
1. Elewacja tynk zewnętrzny silikonowy samoczyszczący 1,5 mm
2. Elewacja ocieplenie styropian
3. Parapety zewnętrzne blacha ocynk powlekana
D. STOLARKA OKIENNA I DRZWIOWA:
1. Stolarka okienna PVC, o profilu pięciokomorowym, z pakietem trzyszybowym,
2. Drzwi zewnętrzne
3. Brama garażowa z regulacja elektryczną - 2 piloty
E. ELEMENTY WYKOŃCZENIA WNĘTRZ:
1. Tynki wewnętrzne na ścianach i sufitach - gipsowe, maszynowe
F. INSTALACJE:
1. Przyłącze kanalizacji sanitarnej wraz z instalacją wewnętrzną: rury kanalizacyjne, odpływy kanalizacyjne, na parterze i pierwszym piętrze.
2. Przyłącze wodociągowe z wodomierzem i instalacją wewnętrzną, rury PVC, podstawowe podejścia do urządzeń sanitarnych, na parterze i pierwszym piętrze. Punkt poboru wody na elewacji budynku od strony ogrodu.
3. Przyłącze elektryczne wraz z tablicą rozdzielczą i instalacją wewnętrzną, biały osprzęt elektryczny Simon
4. Instalacja teletechniczna.
5. Instalacja grzewcza: pompa ciepła Panasonic 1,5 kw, ogrzewanie podłogowe w całym budynku
G. ZAGOSPODAROWANIE TERENU
1. Niwelacja terenu
2. Utwardzenie terenu z kostki brukowej i płyt ażurowych
3. Ogrodzenie części posesji ogrodzeniem panelowym
4. Wydzielone miejsca z kostki betonowej na pojemniki na odpady
6. Drenaż wód opadowych wokół budynku
6. Zewnętrzne oświetlenie - 8 latarni zewnętrznych ulicznych
Dla inwestycji prowadzony jest rachunek powierniczy.
Media: woda, prąd, kanalizacja, światłowód
Termin realizacji : 31.06.2026 roku
Kontakt:
?668 679 550 / 690 675 752
?katarzyna.bodasinska@globhaus.pl
www.globhaus.pl
Nowoczesny dom 4 pokoje | garaż / możliwość dużej kuchni | prywatny ogród | Ratyń - Wrocław
Kameralna inwestycja czterech nowoczesnych domów w zielonej części Wrocławia - Ratyń. Funkcjonalny układ 4 pokoi z możliwością adaptacji garażu na pełnowymiarową kuchnię lub dodatkowy pokój. Idealna alternatywa dla mieszkania w bloku - prywatny ogród, cisza i szybki dojazd do centrum.
Najważniejsze atuty:
87 m² + garaż 17 m² (możliwość przerobienia na kuchnię/gabinet)
4 pokoje: parter - salon z aneksem, piętro - 3 sypialnie + łazienka + garderoba
Prywatny ogródek
Tylko 4 domy w inwestycji - kameralna atmosfera
Pompa ciepła i ogrzewanie podłogowe
Instalacja pod fotowoltaikę
Żaluzje elektryczne w kolorze antracyt
Wysokie pomieszczenia i duże przeszklenia
Rachunek powierniczy + DFG - bezpieczeństwo transakcji
Dla kogo:
Rodzina z 1-2 dzieci szukająca domu blisko Wrocławia
Osoby pracujące hybrydowo, potrzebujące dodatkowego gabinetu
Ludzie uciekający z mieszkania w bloku i szukający prywatnej przestrzeni
Parter: salon z aneksem kuchennym i wyjściem do ogrodu, toaleta, ogrzewany garaż z instalacją wod/kan w bryle budynku.
Piętro: trzy ustawne sypialnie, duża łazienka z miejscem na wannę, prysznic, praktyczne pomieszczenie gospodarcze/garderoba.
Wykaz powierzchni
Parter - 51,90 m2
1.1 Wiatrołap - 3,50 m2,
1.2 Pokój dzienny z aneksem kuchennym - 23.97m2
1.3 WC - 2m2
1.4 Garaż - 17,74m2
1.5 Komunikacja - 4.69m2
Piętro - 52,92 m2:
1.1 Korytarz - 5,91 m2
1.2 Garderoba - 3,16m2
1.3 Sypialnia - 9.08 m2
1.4 Sypialnia - 11,22
1.5 Sypialnia- 16,01m2
1.6 Łazienka - 7,52m2
Budynki sprzedawane w stanie deweloperskim.
Standard wykończenia
ul. Trzmielowicka Wrocław
Standard wykończenia
A. ŚCIANY, STROPY, SCHODY, KOMINY:
1.Roboty ziemne, ławy żelbetowe, słupy/trzpienie żelbetowe, fundamenty
2.Izolacje bitumiczne
3. Ściany nośne I kondygnacji oraz II kondygnacji z bloczków silikatowych lub pustaków ceramicznych
4. Ścianki działowe na parterze i pierwszym piętrze.
5.Nadproża żelbetowe, słupy/trzpienie żelbetowe.
6. Kominy
7. Strop nad parterem
8. Strop nad piętrem
9. Schody wewnętrzne żelbetowe, wylewane lub prefabrykowane parter
B. DACH
1. Izolacja termiczna ze styropianu
2. Hydroizolacja z membrany PVC
3. Rury spustowe
4. Wyłaz dachowy
C. ELEWACJE:
1. Elewacja tynk zewnętrzny silikonowy samoczyszczący 1,5 mm
2. Elewacja ocieplenie styropian
3. Parapety zewnętrzne blacha ocynk powlekana
D. STOLARKA OKIENNA I DRZWIOWA:
1. Stolarka okienna PVC, o profilu pięciokomorowym, z pakietem trzyszybowym,
2. Drzwi zewnętrzne
3. Brama garażowa z regulacja elektryczną - 2 piloty
E. ELEMENTY WYKOŃCZENIA WNĘTRZ:
1. Tynki wewnętrzne na ścianach i sufitach - gipsowe, maszynowe
F. INSTALACJE:
1. Przyłącze kanalizacji sanitarnej wraz z instalacją wewnętrzną: rury kanalizacyjne, odpływy kanalizacyjne, na parterze i pierwszym piętrze.
2. Przyłącze wodociągowe z wodomierzem i instalacją wewnętrzną, rury PVC, podstawowe podejścia do urządzeń sanitarnych, na parterze i pierwszym piętrze. Punkt poboru wody na elewacji budynku od strony ogrodu.
3. Przyłącze elektryczne wraz z tablicą rozdzielczą i instalacją wewnętrzną, biały osprzęt elektryczny Simon
4. Instalacja teletechniczna.
5. Instalacja grzewcza: pompa ciepła Panasonic 1,5 kw, ogrzewanie podłogowe w całym budynku
G. ZAGOSPODAROWANIE TERENU
1. Niwelacja terenu
2. Utwardzenie terenu z kostki brukowej i płyt ażurowych
3. Ogrodzenie części posesji ogrodzeniem panelowym
4. Wydzielone miejsca z kostki betonowej na pojemniki na odpady
6. Drenaż wód opadowych wokół budynku
6. Zewnętrzne oświetlenie - 8 latarni zewnętrznych ulicznych
Dla inwestycji prowadzony jest rachunek powierniczy.
Media: woda, prąd, kanalizacja, światłowód
Termin realizacji : 31.06.2026 roku
Kontakt:
?668 679 550 / 690 675 752
?katarzyna.bodasinska@globhaus.pl
www.globhaus.pl
- powierzchnia: 104 m2
- powierzchnia działki: 125 m2
- liczba pięter w budynku: 2 piętrowy
- liczba pokoi: 4 pokoje
- liczba łazienek: 2 łazienki
- ogrodzenie: ogrodzona
- dojazd: asfaltowy
- parking: garaż wolnostojący
- rok budowy: 2026
- numer oferty: 928178
- data dodania: 2 Luty 2026
- data ostatniej aktualizacji: 23 Luty 2026
Dane kontaktowe

Nieruchomości GLOBHAUS
ul. Nawłociowa 2055-003 Chrząstawa Wielka (wieś - Powiat wrocławski)
tel: +48 668 679 550
Katarzyna Bodasinska-Szczepańczyk
tel: +48 668 679 550
Osoba do kontaktu: Katarzyna Bodasińska
Instrukcje kontaktowe: Katarzyna Bodasińska <span class="phone-number-hidden">668679550</span>













