wolnostojący , garaż, kanalizacja, światłowód














domy wolnostojący • na sprzedaż • rynek pierwotny • Gajków
870 000 zł
• 150 m²
5 800 zł za m2
5 800 zł za m2
4 pokoje • 2 łazienki • budynek 1 piętrowy • Rok budowy: 2026
Kontakt
bez prowizji i PCC - oferta bezpośrednio od dewelopera!!!!
OPIS INWESTYCJI:
BUDYNEK WOLNOSTOJĄCY Z PODDASZEM w projekcie indywidulanym w stanie deweloperskim podwyższonym położony w pięknym miejscu z dojazdem asfaltowym w Gajkowie, tylko 5 km od Wrocławia
Obok inwestycji zieleń , piękne tereny spacerowe.
Wszystkie media miejskie: kanalizacja, woda, prąd, światłowód
Powierzchnia użytkowa budynku: 134,59 m2. Powierzchnia całkowita: 150 m2.
Działka o powierzchni ok. 460 m2, kształtna kwadratowa
- Ogrzewanie podłogowe w całym budynku
- pompa ciepła
- kanalizacja , światłowód
- rolety elektryczne
- brama automatyczna
- taras
- wysoki standard wykończenia
- certyfikat energetyczny- dom eco - wysoki współczynnik 0,58
Przeznaczenie działki w planie: Teren budownictwa mieszkaniowego jednorodzinnego. Idealne ułożenie działki względem stron świata.
W bezpośrednim sąsiedztwie rozciągają się zachwycające zielone tereny spacerowe, prowadzące przez Obszar Natura 2000 Grądy w Dolinie Odry. Pobliska wyspa i trasy rowerowe zapraszają do aktywnego wypoczynku.
Opis inwestycji:
Budynek to dom klasyczny parterowy z użytkowym poddaszem, kuchnia, salon z jadalnią, łazienka , pomieszczenie techniczne, garaż , na piętrze 3 przestronne sypialnie , garderoba, pokój kąpielowy .
Cudowne miejsce wśród zieleni , cisza , spokój , enklawa natury , a jednocześnie pełna infrastruktura, ok. 200m przystanek 855 do Wrocławia , pl. Grunwaldzki i autobusy szkolne - do Czernicy i Kamieńca Wrocławskiego
W miejscowości sklepy spożywcze , żabka, Mrówka, stacja benzynowa,
Piękne trasy rowerowe, wkoło lasy , siłownie napowietrzne itp
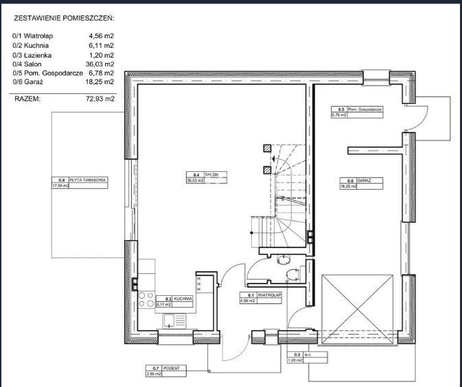
Parter: 72,93m2
1. Salon 36,03
2. Kuchnia 6,11
3. Wiatrołap 4,56
4. Łazienka 1,20
5. Garaż jednostanowiskowy 18,25
6. Pomieszczenie gospodarcze 6,78
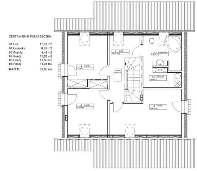
Pietro : 61,66m2
1. Pokój z garderobą - 15,83m2
2. Pokój - 11,56m2
3. Pokój - 11,04m2
5. pralnia lub garderoba- 4,45 m2
6. Łazienka - 6,85m2
7. Holl - 11,93
STANDARD - stan deweloperski podwyższony
- Ławy fundamentowe- żelbetowe;
- Mury fundamentu- bloczek betonowy B6, ocieplenie fundamentów + izolacja pionowa i pozioma;
- Ściany zewnętrzne - beton komórkowy 24 cm;
- Strop nad parterem lany
- Konstrukcja dachu drewniana, nadbitka drewniana malowana impregnatem;
- Pokrycie dachu- dachówka ceramiczna
- Kominy systemowe wraz z obróbką blacharską, wyłaz dachowy;
- Rynny PCV
- Drzwi wejściowe zewnętrzne
- Stolarka okienna: , kolor jasny dąb zewnątrz, od wewnątrz - biały
- Rolety aluminiowe w oknach na parterze i poddaszu, sterowane silnikami elektrycznymi;
- Ocieplenie budynku: styropian 20 cm zazbrojony siatką i klejem;
- Ściany wewnętrzne z bloczka gazobetonowego 12 cm;
- Tynki wewnętrzne: gipsowe położone maszynowo;
- Parapety zewnętrzne: granitowe czarne; wew. konklomerat
- Ogrodzenie: z trzech stron
- Kostka brukowa; wejście, chodnik do budynku, miejsca parkingowe z kostki
- Instalacja elektryczna: podtynkowa z osprzętem
- Posadzki: izolacja przeciwwilgociowa, izolacja termiczna (styropian), warstwa wyrównawcza betonowa;
- Zabudowa poddasza: izolacja termiczna wełna mineralną , płyty GK
- Elewacja: tynk silikonowy - biało- beżowy,
- Instalacja sanitarna: wg projektu, bez armatury (można indywidualnie dostosować instalację);
- Instalacja wody: wg projektu ( indywidualne dostosowanie instalacji )
- Instalacja CO , w całości ogrzewanie podłogowe;
- Klimatyzacja: opcjonalnie za dopłatą (montaż przewodów pod klimatyzację bez lub z jednostkami zew. i wew.);
- Wyposażenie kotłowni: pompa ciepła
- Prąd - przyłącze energetyczne doprowadzone do budynku;
- Woda - przyłącze doprowadzone do budynku;
- Kanalizacja miejska
- Wyrównanie, uporządkowanie działki wokół budynku.
Termin realizacji stanu deweloperskiego: 2, 3 kwartał 2026 rok
Zamieszczone na naszych stronach oferty nie stanowią oferty w rozumieniu Kodeksu Cywilnego, a dane w nich zawarte mają jedynie charakter informacyjny. Niektóre zdjęcia są poglądowe i przedstawiają inną inwestycję realizowaną wg tego samego projektu bądź wizualizację budynku.
OPIS INWESTYCJI:
BUDYNEK WOLNOSTOJĄCY Z PODDASZEM w projekcie indywidulanym w stanie deweloperskim podwyższonym położony w pięknym miejscu z dojazdem asfaltowym w Gajkowie, tylko 5 km od Wrocławia
Obok inwestycji zieleń , piękne tereny spacerowe.
Wszystkie media miejskie: kanalizacja, woda, prąd, światłowód
Powierzchnia użytkowa budynku: 134,59 m2. Powierzchnia całkowita: 150 m2.
Działka o powierzchni ok. 460 m2, kształtna kwadratowa
- Ogrzewanie podłogowe w całym budynku
- pompa ciepła
- kanalizacja , światłowód
- rolety elektryczne
- brama automatyczna
- taras
- wysoki standard wykończenia
- certyfikat energetyczny- dom eco - wysoki współczynnik 0,58
Przeznaczenie działki w planie: Teren budownictwa mieszkaniowego jednorodzinnego. Idealne ułożenie działki względem stron świata.
W bezpośrednim sąsiedztwie rozciągają się zachwycające zielone tereny spacerowe, prowadzące przez Obszar Natura 2000 Grądy w Dolinie Odry. Pobliska wyspa i trasy rowerowe zapraszają do aktywnego wypoczynku.
Opis inwestycji:
Budynek to dom klasyczny parterowy z użytkowym poddaszem, kuchnia, salon z jadalnią, łazienka , pomieszczenie techniczne, garaż , na piętrze 3 przestronne sypialnie , garderoba, pokój kąpielowy .
Cudowne miejsce wśród zieleni , cisza , spokój , enklawa natury , a jednocześnie pełna infrastruktura, ok. 200m przystanek 855 do Wrocławia , pl. Grunwaldzki i autobusy szkolne - do Czernicy i Kamieńca Wrocławskiego
W miejscowości sklepy spożywcze , żabka, Mrówka, stacja benzynowa,
Piękne trasy rowerowe, wkoło lasy , siłownie napowietrzne itp
Parter: 72,93m2
1. Salon 36,03
2. Kuchnia 6,11
3. Wiatrołap 4,56
4. Łazienka 1,20
5. Garaż jednostanowiskowy 18,25
6. Pomieszczenie gospodarcze 6,78
Pietro : 61,66m2
1. Pokój z garderobą - 15,83m2
2. Pokój - 11,56m2
3. Pokój - 11,04m2
5. pralnia lub garderoba- 4,45 m2
6. Łazienka - 6,85m2
7. Holl - 11,93
STANDARD - stan deweloperski podwyższony
- Ławy fundamentowe- żelbetowe;
- Mury fundamentu- bloczek betonowy B6, ocieplenie fundamentów + izolacja pionowa i pozioma;
- Ściany zewnętrzne - beton komórkowy 24 cm;
- Strop nad parterem lany
- Konstrukcja dachu drewniana, nadbitka drewniana malowana impregnatem;
- Pokrycie dachu- dachówka ceramiczna
- Kominy systemowe wraz z obróbką blacharską, wyłaz dachowy;
- Rynny PCV
- Drzwi wejściowe zewnętrzne
- Stolarka okienna: , kolor jasny dąb zewnątrz, od wewnątrz - biały
- Rolety aluminiowe w oknach na parterze i poddaszu, sterowane silnikami elektrycznymi;
- Ocieplenie budynku: styropian 20 cm zazbrojony siatką i klejem;
- Ściany wewnętrzne z bloczka gazobetonowego 12 cm;
- Tynki wewnętrzne: gipsowe położone maszynowo;
- Parapety zewnętrzne: granitowe czarne; wew. konklomerat
- Ogrodzenie: z trzech stron
- Kostka brukowa; wejście, chodnik do budynku, miejsca parkingowe z kostki
- Instalacja elektryczna: podtynkowa z osprzętem
- Posadzki: izolacja przeciwwilgociowa, izolacja termiczna (styropian), warstwa wyrównawcza betonowa;
- Zabudowa poddasza: izolacja termiczna wełna mineralną , płyty GK
- Elewacja: tynk silikonowy - biało- beżowy,
- Instalacja sanitarna: wg projektu, bez armatury (można indywidualnie dostosować instalację);
- Instalacja wody: wg projektu ( indywidualne dostosowanie instalacji )
- Instalacja CO , w całości ogrzewanie podłogowe;
- Klimatyzacja: opcjonalnie za dopłatą (montaż przewodów pod klimatyzację bez lub z jednostkami zew. i wew.);
- Wyposażenie kotłowni: pompa ciepła
- Prąd - przyłącze energetyczne doprowadzone do budynku;
- Woda - przyłącze doprowadzone do budynku;
- Kanalizacja miejska
- Wyrównanie, uporządkowanie działki wokół budynku.
Termin realizacji stanu deweloperskiego: 2, 3 kwartał 2026 rok
Zamieszczone na naszych stronach oferty nie stanowią oferty w rozumieniu Kodeksu Cywilnego, a dane w nich zawarte mają jedynie charakter informacyjny. Niektóre zdjęcia są poglądowe i przedstawiają inną inwestycję realizowaną wg tego samego projektu bądź wizualizację budynku.
- powierzchnia: 150 m2
- powierzchnia działki: 460 m2
- liczba pięter w budynku: 1 piętrowy
- liczba pokoi: 4 pokoje
- liczba łazienek: 2 łazienki
- parking: garaż wolnostojący
- rok budowy: 2026
- numer oferty: 901260
- data ostatniej aktualizacji: 6 Listopad 2025
Dane kontaktowe

Nieruchomości GLOBHAUS
ul. Nawłociowa 2055-003 Chrząstawa Wielka (wieś - Powiat wrocławski)
tel: +48 668 679 550
Katarzyna Bodasinska-Szczepańczyk
tel: +48 668 679 550
Osoba do kontaktu: Katarzyna Bodasińska
Instrukcje kontaktowe: Katarzyna Bodasińska <span class="phone-number-hidden">668679550</span>













